一、事故概述和事故性質認定
2025年5月29日,湖北營潤礦山建設有限公司駐大冶市興紅礦業有限公司項目部(以下簡稱營潤項目部)作業人員在大冶市興紅礦業有限公司井下-587m分層排險過程中發生一起冒頂事故,造成一人死亡,直接經濟損失約126.029萬元。
事故發生后,省應急管理廳,國家礦山安全監察局湖北局,大冶市委、市政府,黃石市、大冶市應急管理局高度重視,第一時間趕赴事故現場指導事故應急處置工作。依照《中華人民共和國安全生產法》《生產安全事故報告和調查處理條例》和《湖北省生產安全事故報告和調查處理辦法》等有關法律法規規定,2025年6月3日,經大冶市人民政府同意,成立由大冶市應急管理局牽頭,大冶市公安局、大冶市總工會等單位組成的大冶市興紅礦業有限公司“5·29”一般冒頂片幫事故調查組,并邀請大冶市紀委監委派員參加,對事故進行調查。調查組委托黃石安良技術咨詢有限公司對事故原因進行技術鑒定。
事故調查組按照“四不放過”和“科學嚴謹、依法依規、實事求是、注重實效”的原則,通過現場勘驗、查閱資料、調查取證、檢測鑒定和專家分析論證,查明了事故發生的原因、經過、人員傷亡和直接經濟損失等情況,認定了事故性質和責任,提出了對有關責任人員和責任單位的處理建議,并針對事故原因及暴露出的問題,提出了事故防范措施。
經調查認定,該事故是一起因施工現場安全管理不到位,安全教育培訓不扎實和作業人員超出自身工作職責從事排險作業造成的一般冒頂片幫生產安全責任事故。
二、事故基本情況
(一)事故發生單位概況
大冶市興紅礦業有限公司(以下簡稱興紅公司)
法定代表人:趙甫賜
企業類型:其他有限責任公司
統一社會信用代碼:91420281753446437U
成立日期:2003-11-26
注冊地址:大冶金湖街辦紅衛銅鐵礦
經營范圍:鐵礦地下開采,礦產品加工及銷售,礦山地質環境恢復治理工程服務。(涉及許可經營項目,應取得相關部門許可后方可經營)。
興紅公司位于大冶市金湖街道下四房村境內,由原國有大冶市紅衛銅鐵礦改制而成,是一家集采、選、充于一體的民營企業。興紅公司持有省自然資源和規劃廳頒發的《采礦許可證》,證書編號:C4200002010112120079161,有效期為2022年8月5日至2030年8月30日,礦區范圍0.1414平方公里,生產規模12萬噸/年。持有湖北省應急管理廳頒發的《安全生產許可證》證書編號:(鄂)FM安許證(2025)020343號,有效期為2025年1月6日至 2028年 1月5日。
(二)事故其他相關單位
湖北營潤礦山建設有限公司(以下簡稱營潤公司)
法定代表人:莊明營
企業類型:有限責任公司(自然人投資或控股)
統一社會信用代碼:9142070079878734X0
成立日期:2007-4-29
注冊地址:鄂州市濱湖西路鴻盛大廈B座獨單元12層4號
經營范圍:許可項目:建設工程施工,爆破作業,道路貨物運輸(不含危險貨物),建筑勞務分包。(依法須經批準的項目,經相關部門批準后方可開展經營活動,具體經營項目以相關部門批準文件或許可證件為準)。一般項目:工程技術服務(規劃管理、勘察、設計、監理除外),選礦,裝卸搬運,機械設備租賃,建筑材料銷售,非金屬礦及制品銷售,金屬礦石銷售,土石方工程施工,建筑用石加工。(除許可業務外,可自主依法經營法律法規非禁止或限制的項目)。
營潤公司持有湖北省應急管理廳頒發的《安全生產許可證》,證書編號:(鄂)FM安許證字(2023)080457;有效期為2023年2月13日至 2026年 2月12日。持有湖北省住房和城鄉建設廳頒發的《安全生產許可證》,證書編號:(鄂)JZ安許證字(2014)0010234;有效期為2023年8月18日至 2026年 8月18日。持有湖北省住房和城鄉建設廳頒發的《建筑業企業資質證書》,證書編號:D242002648,有效期為2024年6月27日至2029年6月21日。
營潤公司主要經營爆破作業、金屬礦石銷售、土石方工程施工,2007年即取得鄂州市住房和城鄉建設委員會批準的礦山工程施工總承包資格。該公司于2012年9月經湖北省住房和城鄉建設廳核準為礦山工程施工總承包貳級企業,注冊資金5618萬元,下設1個處、2個辦事處、13個項目部,機關設有7個職能處室,在職職工764人,具有各類專業管理人員139人,其中高級工程師5人、工程師38人、高級經濟師2人、經濟師5人、高級會計師1人、會計師3人、一級建造師3人、二級建造師16人、安全經理2人、安全員22人、中級爆破技術人員3人、特種作業人員87人。
(三)事故發生單位與事故其他相關單位之間的關系
2018年8月,興紅公司因工作需要,決定將井下采掘工程發包給營潤公司。營潤公司隨即成立“湖北營潤礦山建設有限公司駐大冶市興紅礦業公司項目部”,并與興紅公司簽訂了《采掘工程施工合同》。2024年3月26日,興紅公司與營潤公司續簽了《大冶市興紅礦業有限公司井下采掘工程施工合同》,合同有效期至2026年3月25日。合同明確工程名稱:大冶市興紅礦業有限公司地面、井下采掘工程及其他附屬工程;工程范圍:坑采車間地面及井下所有中段;承包方式:采用直接費、輔助工種人工費和安全生產費用等總包干的承包方式。承包內容:1、地面及井下各中段采、出礦,平巷、天井及聯道掘進,水溝掘砌,巷道、采場、天井、聯道支護等;2、施工內容包括鑿巖、爆破、出碴、出礦、掌子面通風、排水、提升、壓(抽)風、照明、運輸、軌道的輔設、風水管線安裝、噴漿、澆灌及錨桿支護等。
興紅公司與營潤公司簽訂了《非煤礦山外包工程安全生產管理協議》,明確雙方的承諾、安全投入和資金保障、 安全設施和施工條件、隱患排查與治理、安全教育與培訓、事故應急救援和安全檢查與考評等主要內容。
(四)事故有關單位安全管理情況
1.安全管理機構情況
興紅公司設置了安全科、技術科、設備科、坑采車間、選礦車間、辦公室、財務室、車隊等科室,現有員工275人,其中中高級工程技術和經營管理人員32人;成立了以經理石教云為組長的安全生產領導小組;配備有安全總監張百華、總工程師丁三加、生產副經理馮潤、機電副經理王伯泉;全公司安全管理人員共22名,專職安全員3人,經理石教云,安全總監張百華和安全管理人員周昊等均持有《安全生產知識和管理能力考核合格證》并在有效期內。
營潤公司成立了駐興紅公司項目部,營潤項目部共有職工103人,其中安全管理人員4人、五職人員5人(采礦負責人唐宏念、機電負責人宋登賢、地質負責人楊濤濤、測量負責人徐宜召、項目經理占漢文)、專職安全員3人、專職安全管理人員3人,支護工4人。營潤項目部下設安全、生產、技術三個科室,三個作業班組,占漢文為項目經理,趙正兵為項目部生產副經理,孫勝興為當班班長;項目部經理占漢文、趙正華、朱其俊等4人持有安全生產主要負責人資格證;安全管理人員趙正兵、梅光義、陳進國等7人持有《安全生產知識和管理能力考核合格證》,并在有效期內。
2.相關安全管理制度建立和執行情況
興紅公司編制了《頂板邊幫分級管理制度》《特種作業管理制度》《安全檢查工安全操作規程》《支柱工安全操作規程》《安全檢查工崗位安全生產責任清單》等124項安全生產規章制度和37項安全操作規程。營潤項目部主要執行興紅公司編制的安全生產規章制度和各項安全操作規程,同時自身也建立了55條安全管理制度和14條操作規程。事發當班井下作業人數共 56人,事發作業面 2 人。當天井下帶班領導為安全總監張百華。企業為當事人購買了安全生產責任險和工傷保險。雖然各項制度建立的較為齊全,但是制度執行還存在不到位的情況,部分制度內容與國家相關規定、規范相沖突。
3.相關員工安全教育培訓情況
死者朱福多,系營潤公司駐興紅公司項目部作業人員,2023年10月6日至10月14日期間接受了入職三級安全教育培訓,2023年10月28日正式入職營潤公司駐興紅公司項目部,崗位為出礦工。2023年12月22日至12月23日接受了轉崗三級教育培訓,崗位變更為安全檢查工。朱福多與營潤公司簽訂的《勞動合同書》期限自2023年12月23日起,無固定期限。持有湖北省應急管理廳頒發的《特種作業操作證》,操作項目為金屬非金屬礦山安全檢查作業(地下礦山),有效期2023年12月22日至2029年12月21日。朱福多正式上崗后還簽訂了《員工2025年崗位安全生產責任書》《企業員工安全承諾書》《員工安全生產責任清單》《師傅帶徒弟協議書》等。2025年以來,參加了1月、2月、3月、4月、5月安全教育培訓并考核合格,培訓的主要內容為安全生產責任制、復工復產、頂板管理、應急處置、中毒窒息等。
(五)事故發生經過
2025年5月29日上午6時45分,項目部主管生產的副經理趙正兵組織召開班前會,布置當班主要工作是對-587m分層3#穿脈巷進出通道(使用磚墻)進行封堵,安排支護工肖艷兵對-576m和-587m分層的安全情況進行檢查與排險,安排當班班長孫勝興與風鉆工焦開迎、安全檢查工朱福多3人先搞好-587m分層的通風、照明,并將-570m中段的錨網、錨桿等支護材料搬運至-587m分層3#穿脈巷,做好支護作業的準備工作,同時交代安全措施,強調須待肖艷兵排險后方可開展支護作業。
7時左右,焦開迎與朱福多乘坐罐籠先行下井至-570m中段,與隨后下井的孫勝興從-570m中段向-587m分層搬運材料和工具;趙正兵與肖艷兵后下井至-570m中段,來到-576m分層進行頂板和邊幫的安全檢查和排險。
下井后,孫勝興等三人一直從-570m中段向-587m分層搬運物資,在事故發生前孫勝興和焦開迎在-570m中段休息一會,朱福多繼續搬運材料獨自前往-587m分層作業位置。
孫、焦二人休息結束后,焦開迎率先搬運材料走向-587m分層。一會后,孫勝興也起身搬運材料走向-587m分層。
8時50分左右,焦開迎在距離支護作業面約十幾米的巷道中聽到“轟隆”一聲響,急忙向前趕到事發地,看到朱福多仰面倒地,兩塊約一百多斤礦石壓在其腿上,一根撬杠插入其身體右下腹部。
(六)事故現場情況
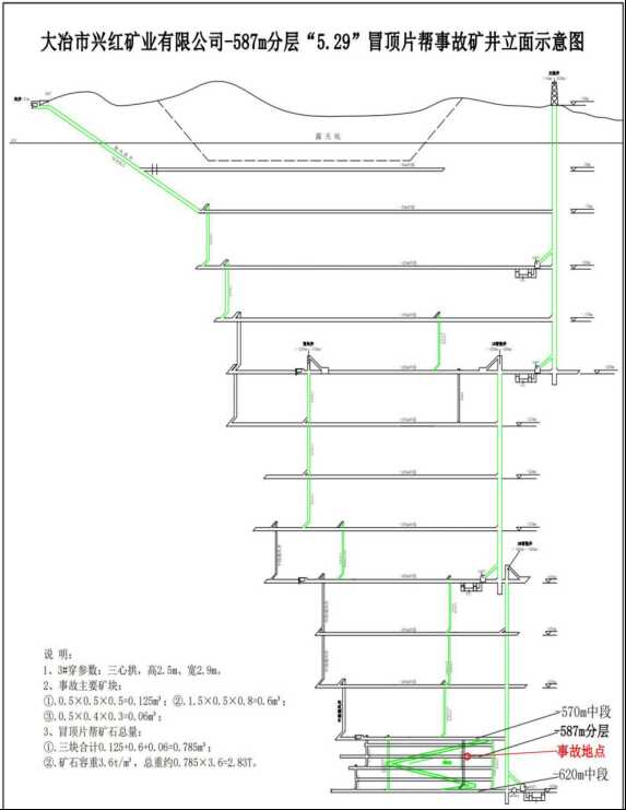
1.事故現場位置與布局。事故現場位于井下-620m中段-587m分層3#穿脈巷道內,該段巷道長32.7m、寬2.5m、高2.5m,原支護形式為錨網噴漿,巷道與-587m分層上盤運輸巷相連接,左右兩邊分別是溜礦井和2#采場-587m分層拉底巷道。-587m分層3#穿脈巷道于2023年6月份施工完成,該穿脈位于-620m中段2#采場-598m分層上部,其下部采場于2025年3月底完成采出礦作業后即轉入充填作業,計劃于5月下旬完成充填(見圖一、圖二)。

(圖一)

(圖二)
2.冒落體情況。冒頂片幫垮落區域大約長3m、寬2.9m、厚0.5m,總體積約4.35m3,總重約4.35×3.6=15.66噸。垮落三塊較大礦塊:①.1.5×0.5×0.8=0.6m3,重約2.16噸; ②.0.5×0.5×0.5=0.125m3,重約0.45噸;③.0.5×0.4× 0.3=0.06m3,重約0.216噸。
3.事故現場現狀。現場放置兩根用于敲幫問頂的撬杠,直徑25mm,長度分別為3m和2m,其中3m長撬杠被砸彎曲,撬杠旁遺留當事人的安全帽,垮落礦石下埋壓一堆準備封堵用的紅墻磚。事故現場入口放置有準備對冒頂片幫處支護加固的錨桿、錨網及使用工具等(見圖三)。

(圖三)
4.-587m分層3#穿脈巷道礦石結構。上盤為大理巖,下盤為火成巖,該穿脈礦體位于上下盤之間,礦體以鐵礦石為主,較硬(普氏系數f8以上)、易碎,上下盤礦巖接觸帶處粘連度較差,節理、裂隙發育,易脫落垮塌;事故發生位置為礦體與巖石的接觸帶,地質條件較復雜(見圖四)。

(圖四)
5.作業面頂板情況。由于-620m中段2#采場回采過程中,受中深孔爆破震動等影響,造成-587m分層3#穿脈下盤礦巖接觸巷道出現頂板局部開裂破損,存在安全風險,不適合在現狀下繼續開采;現場《頂板分級管理牌》中劃分的風險為“三級”。3#穿脈從出口處至事故冒落處后方約2m處,已采取錨網噴漿方式支護,事故發生處和近期自然冒落處頂板采取錨桿噴漿方式支護(見圖五、圖六、圖七、圖八)。

(圖五)

(圖六)

(圖七)

(圖八)
6.作業面施工計劃和施工程序。為消除采場回采對-587m分層以上區域的安全影響,礦方決定對3#穿脈及拉底巷進行封堵充填處理。2025年5月27日,在安排轉運墻磚封堵材料過程中,礦方發現3#穿脈上下盤礦巖接觸帶處頂板局部開裂破損,決定對該處先采取錨網噴漿支護后,再進行砌磚墻封堵作業。5月29日,施工前準備工作包括通風、檢測、安裝照明等安全確認,將錨桿、網片等支護材料和工具搬運至工作面附近安全區域存放等;施工過程包括頂板及邊幫排險、錨網支護作業、砌磚墻封堵等。
(七)事故人員傷亡和直接經濟損失情況
1.人員傷亡情況。事故造成1人死亡,朱福多,男,39歲,重慶市云陽縣云陽鎮寶塔村1組39號。系營潤項目部安全檢查工。
2.直接經濟損失情況。依據《企業職工傷亡事故經濟損失統計標準》(GB6721-1986),核定事故直接經濟損失約126.029萬元人民幣,主要為賠償費用和喪葬費用等。
(八)天氣及環境情況
大冶市地區2025年5月29日地面天氣為多云轉晴,氣溫17℃至29℃;9時左右,井下現場溫度及照明等環境條件滿足工作要求。
三、事故應急處置及評估情況
(一)事故信息接報及響應情況
11時05分,在興紅公司現場的經理石教云向大冶市應急管理局值班室電話報告了事故。
11時12分至15分,大冶市應急管理局值班室分別向大冶市政府總值班室、大冶市委總值班室、黃石市應急管理局值班室電話報告了事故情況。
11時23分,大冶市應急管理局向國家礦山安監局湖北局電話報告了事故情況。
11時50分,金湖街道向大冶市應急管理局值班室書面報告了事故情況。
11時55分至12時05分,大冶市應急管理局向大冶市政府總值班室、大冶市委總值班室、黃石市應急管理局值班室、國家礦山安監局湖北局書面報告了事故情況。
12時31分,大冶市應急管理局向省應急管理廳書面報告了事故情況。
接報事故后,省應急管理廳,國家礦山安全監察局湖北局,黃石市、大冶市應急管理局和屬地政府立即趕赴現場開展事故處置工作。
(二)事故現場應急處置
8時50分左右,焦開迎發現朱福多受傷后,立刻上前試圖搬開壓在朱福多雙腿上的礦石,但沒有搬動。于是焦開迎便開始呼喊周邊的工人來幫忙。在-587m分層3#穿脈巷拐彎處的孫勝興聽到焦開迎的呼喊后,立刻趕到現場,看到幾塊礦石壓住朱福多雙腿,一根撬毛杠插入朱福多右下腹部衣服里面。孫勝興立即與焦開迎一同將朱福多身下的紅磚搬開,焦開迎拔出插入朱福多身體的撬杠,兩人共同將朱福多轉移至礦石冒落點之外的安全位置,此時朱福多已經意識不清,但有呼吸。隨后孫勝興讓焦開迎去-570m中段打電話向公司報告事故,自己則守在朱福多身旁。焦開迎在去往-570m中段的途中遇見興紅公司安全總監張百華和坑采車間副主任方峰松,焦開迎立即向其報告了事故情況。幾分鐘后,張百華隨同焦開迎來到朱福多身邊,發現朱福多神志不清,氣息微弱。張百華便安排方峰松去-620m中段取來擔架,共同將朱福多抬上擔架轉運至-570m中段,乘罐籠升井至地面。
9時左右,興紅公司井下管理人員向地面調度室報告了事故情況。調度室隨即向興紅公司礦領導報告了事故情況。9時09分,興紅公司辦公室撥打了120急救電話,請求醫療救援。因朱福多傷情不明,企業難以判斷是否符合一般生產安全事故標準,所以先行組織傷者的救援和應急處置工作。
10時05分,朱福多到達地面后,等待在井口的大冶市人民醫院救護人員立即對朱福多進行了急救。后經急救無效,現場宣布死亡。
(三)醫療救治和善后情況
9時左右,坑采車間副主任方峰松通過-570m中段應急電話向地面調度室報告了事故情況,調度室隨即向礦領導做了報告。9時09分,興紅公司辦公室撥打了120急救電話,請求醫療救援。9時21分,醫務人員到達興紅公司,在井口等待朱福多升井。10時05分,朱福多升井后,現場醫護人員立即對其進行了急救,隨即現場宣布了朱福多急救無效死亡。2025年5月30日,營潤公司與朱福多家屬,達成賠償和解協議,一次性賠償死者家屬傷亡補助金、家屬撫恤金、喪葬補助金等。
(四)事故應急處置評估
事發后井下現場人員第一時間開始施救,并立即向地 面報告事故情況請求增派人員救援,撥打 120 急救電話,同時積極對傷員進行了施救和對事發現場進行了有效保護。醫務人員在現場盡力對傷員進行搶救,政府主管部門到場參與現場處置工作,事故應急救援符合程序。
四、事故原因分析
-587m分層3#穿脈巷道受本區域礦石巖層結構和2#采場回采中深孔爆破震動等影響,造成其下盤礦巖接觸巷道頂板局部出現開裂破損,不適合在現有條件下繼續開采;為了消除采場回采對-587m分層以上區域的安全影響,礦方決定對3#穿脈及拉底巷進行封堵充填處理,并決定先錨網噴漿支護后,再進行砌磚墻封堵作業。朱福多持有安全檢查作業資格證,其所持特種作業操作范圍只限于“安全監督檢查、巡檢生產作業場所的安全設施和安全生產狀況、檢查并督促處理相應事故隱患的作業”。但朱福多協助搬運物資材料后,在其檢查觀察頂板險情中,沒有遵從工作安排,在現場沒有監護情況下,自行動手使用撬杠對危險作業面進行撬毛檢查排險。
(一)直接原因分析
物的不安全狀態:-587m分層3#穿脈巷道受本區域礦石巖層結構和2#采場回采中深孔爆破產生地壓應力等影響,造成其下盤礦巖接觸巷道頂板局部出現開裂破損。人的不安全行為:當事人朱福多對頂板存在冒落的安全風險辨識不足,擅自超越其所持《特種作業操作證》許可范圍進行撬毛排險作業,且排險時站位不當,致使自己撬落的浮礦石砸中其所持撬杠,造成撬杠插入腹部,導致創傷性腸破裂致死。
(二)其他可能因素排除
通過公安機關、應急管理部門、相關安全技術服務機構 等對事故現場勘察、現場工人及管理人員詢問和事故現場綜 合分析,排除人為故意破壞、突發自然災害、身體疾病等因 素。
(三)間接原因分析
1.外包單位作業現場安全管理不到位。一是當班班前會布置工作任務時,對人員分工、工作準備、工作監護等安排不夠明確、細致和具體。二是作業人員下井后,管理人員對各施工面的總體協調不及時,總體安全管控不到位,事發時事發作業面沒有其他安全管理人員在場,無人制止和糾正安全檢查工朱福多的違章行為。
2.頂板風險分級管控與隱患排查治理雙重預防機制落實不到位。一是風險辨識不準確,局部頂板風險分級不準確;二是沒有對已排查出的隱患按照“五落實”的原則完成整改,導致在隱患整改過程中發生意外。
3.企業安全管理制度存在缺陷。企業《頂板邊幫分級管理制度》《安全檢查工安全操作規程》《安全檢查工崗位安全責任制清單》《支柱工安全操作規程》等制度內容不夠完善,對安全檢查工崗位的工作職責及其責任范圍規定不夠準確、不夠清晰。如《頂板邊幫分級管理制度》中安全檢查工的作業要求存在排險工作內容。
4.企業安全教育培訓缺乏針對性。朱福多接受轉崗三級安全教育考試考核的內容中《安全檢查工安全操作規程》和《安全檢查工崗位安全責任制清單》有關內容不足。企業僅僅依靠通用性或模板化培訓材料進行教育,而忽視了員工特定工作領域可能存在的潛在風險與挑戰,導致了員工無法真正理解崗位風險。
五、有關單位存在的主要問題
(一)營潤公司。安全生產主體責任落實不到位,落實興紅公司《頂板邊幫分級管理制度》《支柱工安全操作規程》等制度不到位;作業現場安全管理不到位。
(二)興紅公司。安全生產主體責任落實不到位,督促項目部落實公司《頂板邊幫分級管理制度》《支柱工安全操作規程》制度不到位,制定的《頂板邊幫分級管理制度》等安全管理規章制度不完善;技術管理人員風險意識不強,采場、巷道施工次序不科學;安全教育培訓內容針對性差。
(三)市應急管理局。市應急管理局執法人員2025年以來對興紅公司進行了2次下井檢查,查出安全隱患16條。2月10日檢查指出該礦-576m、-587m分層及-620m中段2#采場懸掛的頂板分級管理牌板內容不全,未公示支護設計及附圖等信息;4月17日檢查指出該礦-576m分層5-2穿脈內支護層破碎脫落未及時處理等安全隱患,均督促興紅公司對安全隱患進行了整改。另外在重要節假日和暴雨天氣都組織工作人員對礦山進行巡查,累計對該礦巡查3次。雖然市應急管理局執法人員按照執法計劃對興紅公司進行了檢查,但未發現企業安全規章制度、操作規程存在缺陷,教育培訓針對性不強等問題。
(四)金湖街道。2025年以來對興紅公司檢查4次、巡查4次,提出了加強-570m中段等重點區域加強頂幫板支護的工作意見。但是,大冶市推進鄉鎮(街道)履職事項清單編制,厘清上級部門與基層權責邊界,破解基層治理“小馬拉大車”突出問題還在進程中,未正式明確鄉鎮街道對礦山企業的安全監管職責。
六、對有關責任人員和責任單位的處理意見
(一)因在事故中死亡免予追究責任人員
朱福多,男,營潤公司職工,個人崗位安全責任執行不到位,未持有金屬非金屬礦山支柱作業格證件的情況下,進行排險作業,違反企業《安全檢查工安全操作規程》和《中華人民共和國安全生產法》第五十七條之規定,鑒于朱福多已死亡,不再追究其責任。
(二)對有關公職人員的處理建議
楊帆,男,中共黨員,大冶市應急管理執法大隊副大隊長,礦一股負責人,負責大冶市民營礦山企業安全監管工作。督促企業落實安全生產主體責任工作不到位,對企業安全規章制度、操作規程等檢查得不夠仔細,監管措施不夠精準,礦山安全生產治本攻堅三年行動工作成效不佳,責成大冶市應急管理局黨委給予批評教育處理。
根據大冶市鄉鎮(街道)履職事項清單編制試點工作情況,建議對金湖街道黨委政府履行安全生產屬地管理職責相關人員不予責任追究。
(三)對事故有關責任人員和責任單位行政處罰建議
1.占漢文,男,群眾,營潤項目部項目經理,受公司法定代表人委托負責項目施工管理的各項工作。任職期間落實生產經營單位主要負責人對本單位安全生產工作職責不到位,未能督促項目部職工按照規章制度規范作業,對事故的發生負有領導責任。違反了《中華人民共和國安全生產法》第二十一條第(二)(五)項之規定,建議由大冶市應急管理局依據《中華人民共和國安全生產法》第九十五條之規定給予行政處罰。
2.趙正兵,男,群眾,營潤項目部生產副經理。事故當天在井下開展現場巡查和安全隱患排查工作。未能及時發現并制止朱福多的違章作業行為,對事故的發生負有責任。違反了《中華人民共和國安全生產法》第二十五條第(六)項之規定,建議由大冶市應急管理局依據《中華人民共和國安全生產法》第九十六條之規定給予行政處罰。
3.石教云,男,群眾,興紅公司經理。任職期間落實生產經營單位主要負責人對本單位安全生產工作職責不到位,未能督促職工嚴格落實本單位制定的各項安全規章制度和操作規程,未能督促完善本單位與事故相關的各項安全規章制度和操作規程,對事故的發生負有領導責任。違反了《中華人民共和國安全生產法》第二十一條第(二)(五)項之規定,建議由大冶市應急管理局依據《中華人民共和國安全生產法》第九十五條之規定給予行政處罰。
4.張百華,男,中共黨員,興紅公司安全總監,事故當班帶班礦領導。未能完善本單位安全規章制度和操作規程,帶班期間未能及時制止當事人的違章行為,對事故的發生負有責任。違反了《中華人民共和國安全生產法》第二十五條第(一)項之規定,建議由大冶市應急管理局依據《中華人民共和國安全生產法》第九十六條之規定給予行政處罰。
5.營潤公司,施工現場的安全生產管理工作不到位,對已排查出的隱患未能按照“五落實”的原則,落實各項安全防護措施進行整改,未能督促作業人員嚴格執行本單位的安全生產規章制度和安全操作規程,對事故的發生負有責任,違反了《中華人民共和國安全生產法》第四十一條、第四十四條之規定,建議由大冶市應急管理局依據《中華人民共和國安全生產法》第一百一十四條之規定給予行政處罰。
6.興紅公司,未能完善本單位各項安全規章制度和操作規程,未能督促外協單位做好施工現場的安全管理,未能根據職工工作崗位針對性地開展安全教育培訓工作,對事故的發生負有責任,違反了《中華人民共和國安全生產法》第二十條、《中華人民共和國安全生產法》第四十四條之規定,建議由大冶市應急管理局依據《中華人民共和國安全生產法》第一百一十四條之規定給予行政處罰。
(四)其他處理建議
市應急管理局未有效督促企業完善自身安全管理制度,未有效督促企業整改安全隱患,提升企業本質安全水平。責成向大冶市政府做檢查。
七、事故主要教訓
(一)主體責任落實不嚴。事故單位安全生產主體責任落實不到位,主要負責人履行第一責任人責任和安全管理人員履行安全生產法定職責不到位,導致企業安全教育培訓不到位導致職工安全意識欠缺,風險辨識能力不夠,安全規章制度、操作規程不完善等。
(二)汲取歷年冒頂事故教訓不深。我市近年來多次發生冒頂片幫事故,興紅公司未能吸取身邊的教訓,針對性地采取安全防范措施,導致同類問題屢查屢犯、事故重蹈覆轍。
(三)技術引領、科技興安理念不足。企業沒有根據技術原則科學規劃采掘施工、布置巷道,導致開拓的巷道長期暴露不使用,加速了圍巖性質的變化。說明企業對技術管理工作認識不足,沒有樹牢技術引領、科技興安理念。
(四)安全生產監管不細不準。事故暴露出安全監管部 門執法對企業安全規章制度、操作規程等一些細節檢查得不夠仔細,督促企業開展教育培訓針對性不強,監管措施不夠精準,安全生產工作存在短板不足。
(五)外包安全管理不緊。礦山企業普遍存在外包單位,雖然礦山企業將自身的外包單位職工納入了統一管理。但是未能做到一視同仁,礦山企業對外包單位職工的管理還存在懈怠和輕視的情況,外包安全抓得不緊。
八、事故整改和防范措施
(一)強化重點區域施工組織管理。一是對地質結構和礦巖復雜的采掘區域,要加強風險辨識,做好各項防控安全措施。二是各級人員要嚴格落實分級管控制度,切實做好職責范圍內的巡視檢查和監督管理工作。三是對已發現且存在較大風險安全隱患的整改,要加強組織管理,編制施工方案及組織措施。四是施工現場至少明確一名專職安全員到場把關,做好作業前的安全技術交底。五是要對人員分工、工作監護等安排明確、細致和具體,做到特種作業現場相關特種操作人員未到場不開工,相關管理人員未到場不開工。
(二)修訂企業各項安全規章制度。進一步修訂完善企業《特種作業管理制度》《頂板邊幫分級管理制度》《安全檢查工安全操作規程》和《安全檢查工崗位安全責任制清單》等規章制度,準確、清晰地界定安全檢查工崗位的工作職責及其責任范圍,審慎確定存在冒落風險施工現場的管控級別,做到有章可循。
(三)扎實開展員工安全教育培訓。要針對各工種、各崗位的特點進行安全教育培訓,提高員工對斷裂破碎帶、節理密集帶危險源的認識和其他伴生風險的辨識能力,并認真學習掌握安全作業及操作規程,按規程、規范進行監督和落實。凡未經特種作業培訓、考試合格并持有特種作業證的從業人員,一律不得從事特種作業。
(四)加強外包施工單位安全管理。礦山企業要加強對自身外包單位的安全管理,健全完善外包作業管理制度,強化外包人員崗前培訓,嚴格對外包單位職工的安全考核,實現企業員工和外包人員同步管理。
(五)厘清監管職責壓實安全責任。要盡快明確鄉鎮(街道)對礦山企業的安全生產監管職責,按照分級分類的原則,切實落實屬地黨政領導責任、部門監管責任、企業主體責任,有效防范各類事故發生。
(六)提升事故應急處置能力。企業要加強對職工的應急知識教育培訓,定期開展應急救援演練,配足配齊應急救援物資,提升了從業人員的安全意識和應對突發事件的應急處置能力。




